
在寸土寸金的北京,拥有一套65㎡的三居室,告别群租的生活,把热爱搬回家,似乎一切都在慢慢走上坡路。
本期分享的户型面积虽小,但是却拥有三间明亮带窗的独立卧室,还有开敞的公共区域,初买房看到户型图以为没啥可改动的了,但耐不住设计师勇于挑战,再方正的户型,它也有槽点。
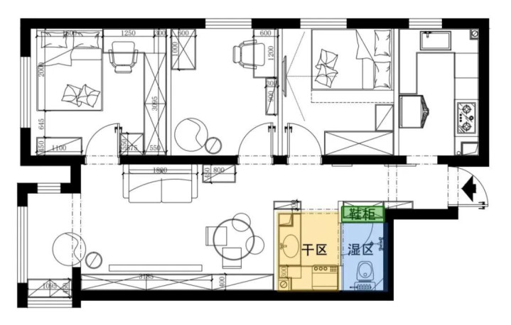
原始户型分析

、入户玄关宽度有限,无法做正常深度鞋柜;
、唯一卫生间是暗卫,使用也不方便。
改造后平面布置图:

1、拆除卫生间过道处墙体,内移卫生间,留出鞋柜;
2、卫生间做干湿分离,满足一家人同时使用。
玄关
开门一侧墙做了挂衣架,进家就能把外套脱掉,免去灰尘进入内部。

借用卫生间墙体厚度做了柜子,鞋子包包,以及一些暂时不用的物品都得到了收纳满足。
柜子对面墙体贴墙做穿衣镜,这样外出都可以整理下穿着,让自己充满能量。

镜子角会贴上便利贴,提醒自己每天要做的事,期待感更强。
卫生间
原暗卫改成了干湿分离,开放的干区地面黑白拼色小砖铺贴,柜体墙面都采用白色,看起来更加明亮,洗漱区宽敞,站两个人同时使用都没有问题。

转角做了洗衣区,洗衣机和烘干机上下叠放,多余尺寸做柜体储物,洗衣用品也有了归宿。

湿区墙面通用渐变色长条砖,给人一种色感波动的效果,小空间不显压抑。

在洗手台的侧边同鞋柜宽度做了半高收纳柜,上方圆形壁灯也显精致。

餐厅
过道进去就是餐厅,位居于全屋中心地带,餐桌一侧抵墙放置,餐椅对放,用餐宽敞。

餐桌后方设置了水吧区,方便家人煮水喝茶,也可做餐边柜使用,储物量增大,柜体上方做了装饰画,

柜体镂空墙体贴了彩色手工小方砖,防止烧水时有水汽进入墙体,很好的保护了墙面。

客厅
客厅和餐厅一体,所以取消了电视柜,连接餐边柜做了整体柜,柜面选择白色,而且做了少于开放格过度,轻盈不压抑。

柜子顶面吊顶内暗藏投影幕布,使用时放下,不使用时收回去,简洁方便。

靠近阳台处的柜体留出一整条做开放格,放各种书本和展示品,这样在阳台阅读起来更方便。

阳台一角做了层板,有太阳的时候还是可以晒一下衣服的,这样穿起来也舒服,有阳光的味道。

主卧
主卧面积本就不大,又因为屋主有在卧室内工作的习惯,所以增加了写字台,同时缩减了床的宽度,只选择了1.5米床宽。

床头深色木板加藤编靠垫极具呼吸感,同时椅子靠背也是藤编造型,空间和谐又轻巧。

主卧衣柜连接书桌,深色做书柜用,衣柜留出挂衣区,迎合屋主习惯。

床尾搭配精致的斗柜,小物件都有地方摆了。

次卧
次卧留给长辈住,所以颜色选择偏素净。

床紧挨墙,侧边做衣柜,床尾墙面悬挂电视机,做了极窄的层板架,可以放放遥控器之类的。

书房


由于目前没有孩子,所以先做书房考虑,物品都选择了灵活可搬的,这样等有孩子了可以重新布置。
书房内暂时放了一组衣柜和书柜书桌,空间看起来还算宽敞。
厨房

u字形厨房利用率高,高低台设计更符合人体工程学,非常人性化。
写在最后
户型小没关系,把每处都利用起来,发挥最大作用就是棒棒的。
这套首都三居室,设计给户型上大分!
瑞和网提示:文章来自网络,不代表本站观点。